KOG Building Projects logo for building contractors, brickwork specialists and home build project management in Lincolnshire & Nottinghamshire

Completed Building Projects Across Lincolnshire & Nottinghamshire

Welcome to the KOG Building Projects Ltd portfolio. This page showcases a selection of completed work across new build developments, extensions, and project-managed builds. If you’re comparing building contractors, seeing real outcomes helps: quality of finish, consistency of workmanship, and the ability to deliver projects that look right and function properly.

We work across Grantham and surrounding areas throughout Lincolnshire and Nottinghamshire. If you’d like to discuss your own project, you can start with our contact form or explore services: Building Contractor, Brickwork Contractor, and Home Builder Project Manager.

Request a Quote for Your Project

Share your postcode, project type, timeframe and and drawings/photos. We’ll respond with practical next steps. We only use your details to reply to your enquiry.

Why a Portfolio Matters When Choosing a Builder

Searches like “building contractor near me” or “new build developer Lincolnshire” often return dozens of options. A portfolio helps you cut through marketing and see real outcomes. It also shows the variety of work a contractor is comfortable delivering— from structural stages through to finished details. For many clients, the most valuable part is proof of the basics done well: straight lines, clean joins, neat brickwork, well-planned openings, and a finish that looks intentional rather than rushed.

At KOG Building Projects Ltd, we focus on a customer-friendly route through the build. That means clear communication, tidy site standards, sensible sequencing, and scope clarity that prevents unnecessary drift. If your project benefits from added oversight, explore our Budget & Cost Control and Building Control & Compliance support.

Below you’ll find project highlights with galleries.
These galleries are designed to show progress stages and final results

Project Portfolio

Our completed projects below include new build developments and extension works delivered with structured coordination. Each project includes a gallery count so you know how much detail is available.

Helpringham, Lincolnshire — New Build Development

Helpringham showcases a new build delivered with a focus on clean detailing and consistent standards. Projects like this benefit from accurate setting out, strong brickwork and a logical programme—especially through the envelope stage, where weather-tightness and detail work protect later internal finishes.

Related services:

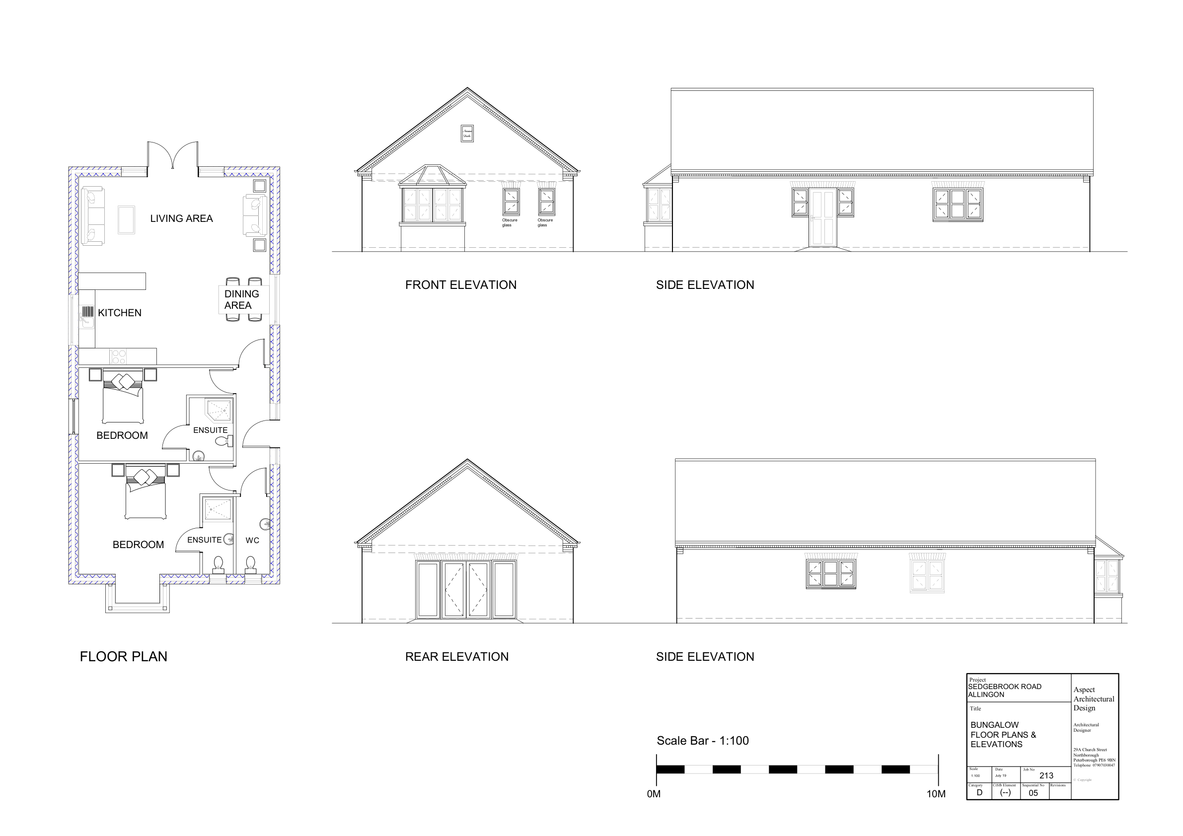
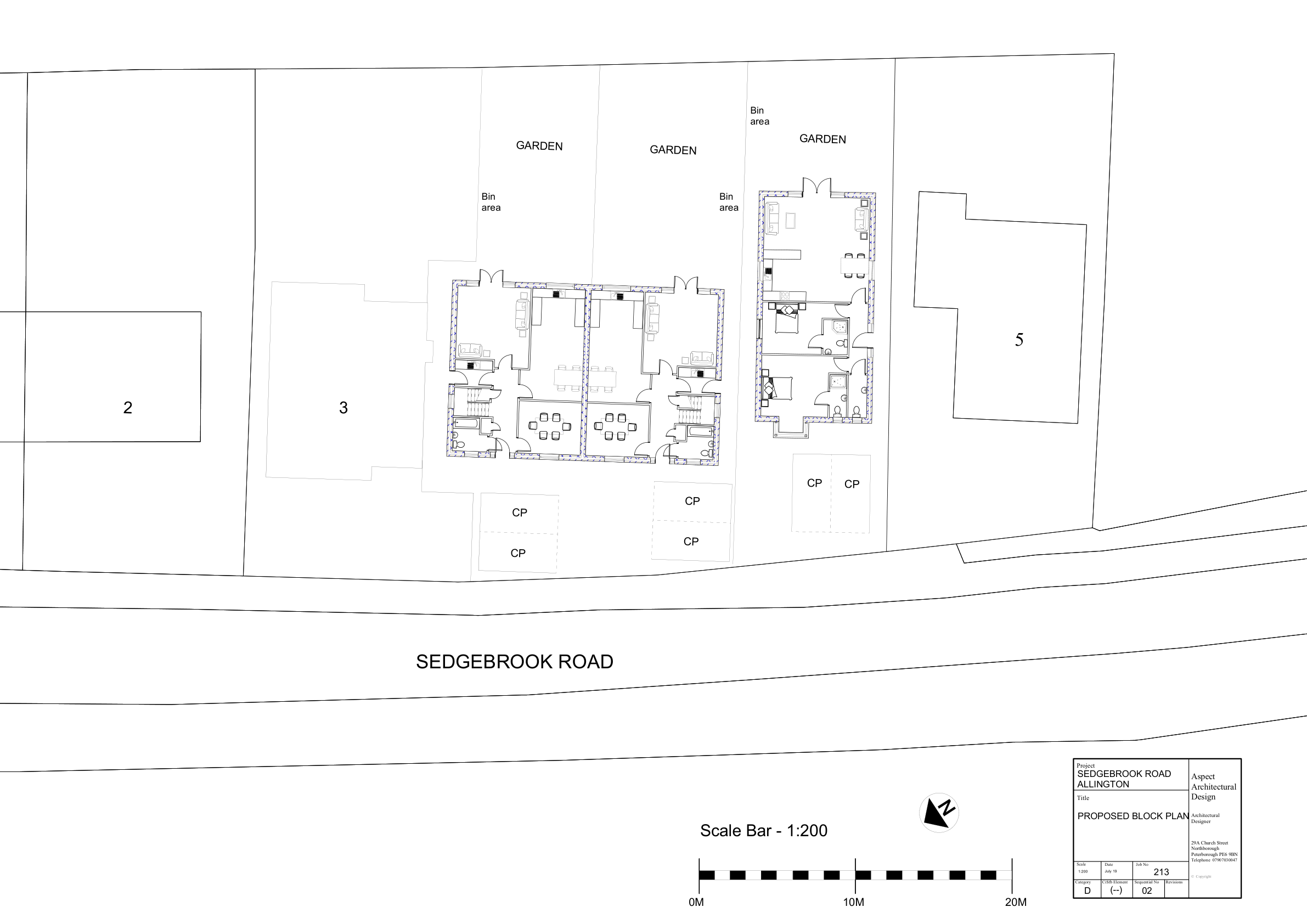
Allington, Lincolnshire — New Build Development

This Allington project demonstrates the delivery of a new build development with an emphasis on consistent workmanship and a clean finish. New builds rely on correct sequencing—groundworks, structure, envelope, first fix, second fix and completion—so that every stage supports the next. Where new builds are involved, clients typically care about the “invisible” quality: levels, tolerances, and the coordination of trades that prevents rework later.

If you’re planning a similar project, explore:

Ruddington Lane, Wilford (Nottingham) — Extension Project Management

This Wilford (Nottingham) extension demonstrates the value of clear coordination where logistics, access and sequencing matter. Extension works often require tight scheduling—particularly where specialist trades are needed at specific stages. A managed approach helps maintain momentum and ensures key milestones are met without rushing final details.

Related services:

Harlaxton, Lincolnshire — Extension Project Management

Extensions require thoughtful integration with the existing building—structure, access, weatherproofing and finishes all need to align. Project management support is often valuable because extensions can involve multiple trades, live-in constraints, and decisions that affect both cost and timeline. This Harlaxton extension shows how managed sequencing and clear milestones help keep momentum without compromising quality.

Related services:

Harlaxton, Lincolnshire — New Build Development

This Harlaxton new build development highlights the importance of consistent workmanship across the structural and finishing stages. With new build programmes, the best results come from strong coordination: groundworks, brickwork, structural elements, and final finishes planned as one sequence rather than separate tasks.

Related services:

Explore the Services Behind These Projects

Each project in our portfolio is delivered through one or more of our core service routes. If you’re planning a build, the best next step is to visit the relevant service page and then contact us with your postcode and timeframe.

Building Contractor Services

If you’re planning an extension, renovation, refurbishment, or a full new build, our Building Contractor service is designed to keep everything moving smoothly. We manage trades, sequencing, site standards, and practical problem-solving to keep your project safe, tidy, and on track.

We can support early decisions that protect your budget (such as structure, access, and specification choices), and then deliver the build with a consistent focus on quality. You get a single point of contact, clear updates, and a finish aligned with your expectations.

Brickwork Contractor Services

Good brickwork is more than appearance — it’s strength, accuracy, and long-term durability. Our Brickwork Contractor service supports new builds, extensions, structural brickwork, blockwork, and retaining walls. We take pride in straight lines, clean detailing, and a methodical approach that keeps the build progressing correctly.

If your project depends on structural integrity and a crisp finish, specialist bricklaying matters. We work to drawings and specification, coordinate with the wider site plan, and maintain standards that help avoid costly rework later.

Home Builder Project Manager

Building a home or managing a multi-stage project can be demanding — especially when different trades, suppliers, and deadlines collide. Our Home Builder Project Manager service brings structure, planning, and calm coordination to reduce risk, protect costs, and keep progress steady.

We manage sequencing, communications, key decisions, and compliance milestones, helping you avoid delays and unnecessary spend. It’s an ideal solution for self-build clients, developers, and homeowners who want one experienced point of control across the build.

Areas We Cover

KOG Building Projects Ltd supports residential and development Building Contractor projects across Grantham and surrounding regions, including Lincolnshire and Nottinghamshire. If your area is listed below, you can click through for local service information. If it isn’t listed, contact us — we may still be able to help depending on scope.

Building Contractor Service Areas

Reviews - See What Local Customers and Clients Say About Our Work

James W.
James W.
Grantham
We used KOG Building Projects Ltd for an extension with structural alterations and the whole process felt well organised from the start. Communication was clear, the team kept us updated at each stage, and the finish was exactly what we hoped for. If you need a building contractor in Grantham who takes planning and workmanship seriously, I’d happily recommend them.
Rachel T.
Rachel T.
Newark-on-Trent
Our groundworks and foundations were completed efficiently and the build moved forward without the usual confusion you hear about. We appreciated how practical and straightforward everything was. The job was managed properly, the site stayed tidy, and the final result gave us real confidence in the rest of the project.
David P.
David P.
Sleaford
We chose KOG for a new build and were impressed by how clearly each stage was explained. From early planning through to the finishing work, everything felt under control. They combined good communication with solid workmanship, which made a big difference to the overall experience.
Melissa H.
Melissa H.
Stamford
The extension work was handled professionally and with a lot of care. Structural changes can be stressful when you’re living in the property, but KOG kept disruption manageable and the programme moving. The build quality was excellent and the new space feels like it has always been part of the house.
Andrew C.
Andrew C.
Lincoln
We needed a contractor who could manage several stages properly, including groundworks, structural alterations and finishing work. KOG Building Projects Ltd delivered exactly that. Reliable, organised and easy to deal with throughout. We would definitely use them again.

Request a Quote for Your Project

Share your postcode, project type, timeframe and and drawings/photos. We’ll respond with practical next steps. We only use your details to reply to your enquiry.

Projects FAQs

We showcase completed new build developments, extensions and project-managed builds, including structural stages and finished details. Explore our service routes: Building Contractor, Brickwork Contractor, and Home Builder Project Manager.

Yes. If you share your postcode, project type and timeframe, we’ll advise the best route and provide practical next steps. Where needed, we can support coordination through Budget & Cost Control and Building Control & Compliance.

Use our contact form and include your postcode, project type, timeframe and any drawings or photos. The more detail you provide, the more accurate our initial guidance can be.

For more questions, visit: